✅NOAH Certified, ANSI 119.5
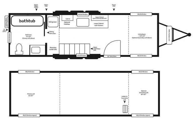
✅Flexible layout – possible downstairs bedroom.
✅ 32′ including 2 lofts – so much room for a Tiny!
✅ Full size bathtub – a rare feature!
✅ Mr Cool Mini-Split – Air Conditioner with Heat Option.
✅ 100# Propane Tank
✅ Fully insulated, including Pella Windows
💞 So much to love about this Tiny!!!











